40
$389,900 Sale
Listed 8 hours ago
1130 SYDNEY STREET
· 2+3
· 1.5
· 4
· 700 - 1100
Key Facts
Key facts for 1130 SYDNEY STREET
Property Type
House, House
Parking
Garage: No, 4 parking
MLS #
X12464203
Size
700 - 1100 sqft
Basement
Finished, Full (Finished)
Listed on
-
Lot size
-
Tax
-
Days on Market
-
Year Built
-
Maintenance Fee
-
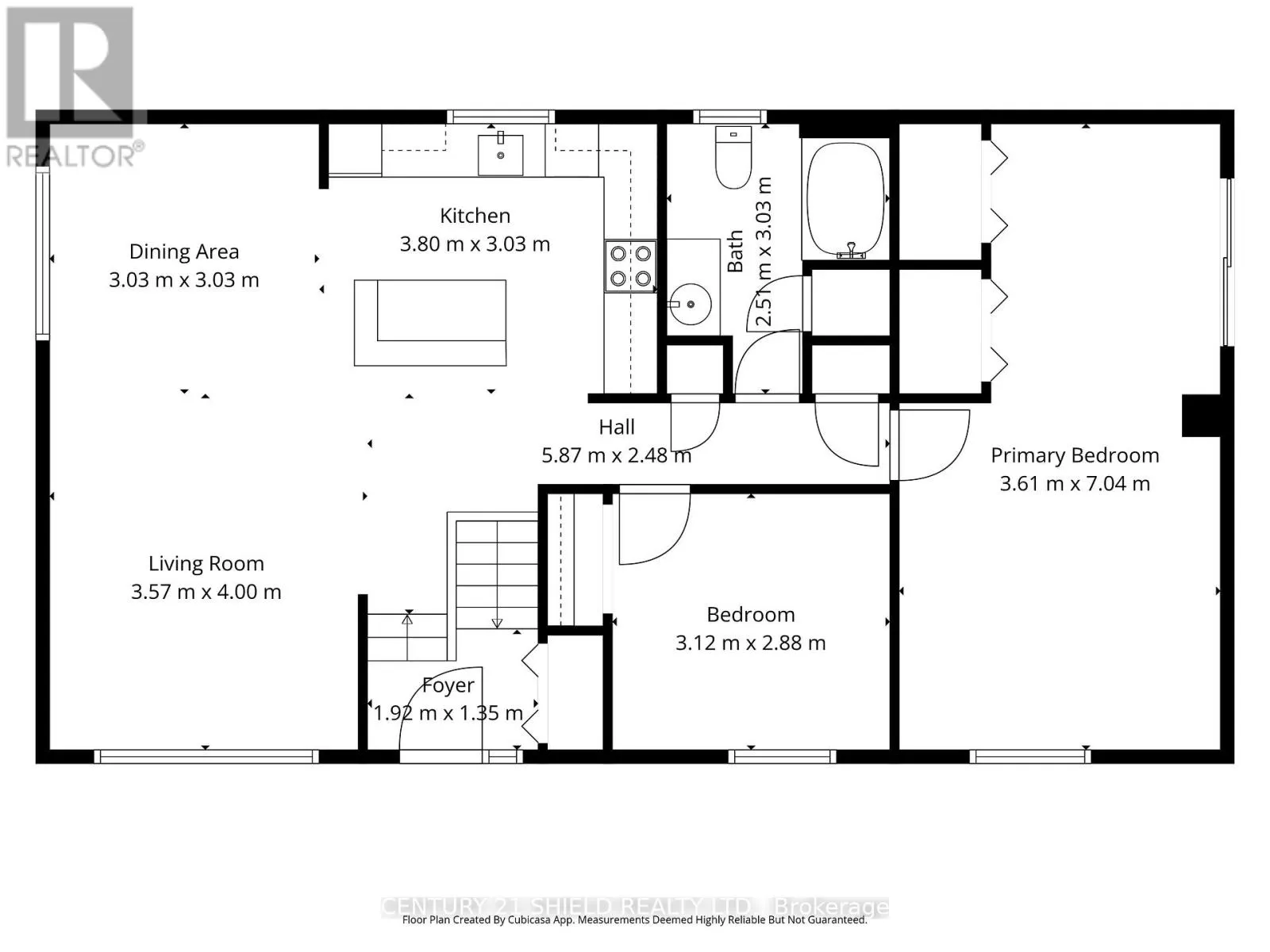
Description
Introducing 1130 Sydney St! Looking for a roomy home for your growing family? This spacious high-ranch bungalow might just be the perfect fit! Sitting proudly on a large corner lot in a convenient location close to all your go-to amenities, this property offers plenty of parking with a wide 2-car dr...iveway, plus a side deck that leads to a generous yard with a handy storage shed ideal for backyard projects or weekend fun. Step inside and you'll be greeted by a bright, open-concept main floor, featuring a welcoming kitchen, dining, and living room combo convenient for everyday life. The main level also offers a full bathroom and three bedrooms, including a spacious primary suite with double walk-in closets and walkout access to the side deck. Head downstairs and you'll find even more space to enjoy! The finished lower level includes a cozy rec. room, two extra bedrooms, and plenty of potential for hobbies, guests, or a home office setup. According to previous information, the furnace and hot water tank were recently updated. You'll also find a mix of hardwood, ceramic, and laminate flooring throughout the home. With a touch of creativity, a great layout, family-friendly design, and solid bones, 1130 Sydney Street could be your happy place! Please allow 3 business days irrevocable on all offers. Property sold as is, where is. Please allow 3 business days irrevocable with all offers. (id:10452)
Similar Properties (No results)
Room Types
Bathroom
-
Dimensions 2.07 m x 1.91 m
42.56 sqft
Bathroom
-
Dimensions 2.27 m x 3.08 m
75.26 sqft
Bedroom
-
Dimensions 2.94 m x 3.19 m
100.95 sqft
Listing courtesy of: CENTURY 21 SHIELD REALTY LTD.
This REALTOR.ca listing content is owned and licensed by REALTOR® members of The Canadian Real Estate Association.